[最も欲しかった] 屋内配線図 225381-屋内配線図 書き方
屋内配線と構内電気設備配線の配線図マスター 単線図から複線図へ/佐藤 一郎(技術・工学・農学) 第1種・第2種電気工事士技能試験レベルの配線図について、配線する際に守らなければならない「きまり」から、単線図を複線図に書き換える方法まで、紙の本の購入はhontoで。1 屋内配線の工事は、特記のある場合を除き600vビニル絶縁ビニルシースケーブル平形(vvf)を用いたケーブル工事である。 2 屋内配線等の電線の本数、電線の太さ、その他、問いに直接関係のない部分等は省略又は簡略化してある。 31.屋内配線の工事は、特記のある場合を除き電灯回路は600Vビニル絶縁ビニルシースケーブル平形(VVF)を用いたケーブル工事である。 2.屋内配線等の電線の本数,電線の太さ及び1階工場内の照明等の回路、その他、問いに直接関係のない部分等は省略又は簡略化してある。 3.漏電遮断器は、定格感度電流30mA、動作時間01秒以内のものを使用している。 4.選択肢
過去問解説 平成26年度上期
屋内配線図 書き方
屋内配線図 書き方-回路用ブレーカー以降(屋内配線) 分電盤の回路用ブレーカーから屋内配線により各部屋などに電気が供給させます。 単相3線式(図)の場合は、3本の線のつなぎ方により100Vと0Vの電気を使うことができます。 白線と赤線または黒線を使用すると100V、黒線と赤線を利用すると0Vの電圧が利用できます。 0Vタイプのクッキングヒーター、食器洗洗浄機、電気温水日本大百科全書(ニッポニカ) 屋内配線の用語解説 建築物内に施設される電気配線の総称。ただし、冷蔵庫、ルームクーラーなどの機器の内部配線、および機器に付属する移動電線類(コード類)は含まれない。使用される電気の性質により強電力線回路(強電)と弱電力線回路(弱電)とに



第二種電気工事士筆記試験 平成28年度下期問41 複線図の書き方
屋外にアンテナがあって、それでテレビを受信しているのは分かりますよね。 そのあと、テレビの電波は 同軸ケーブル という線に乗って屋内の各部屋へと運ばれます。 今回はこの同軸ケーブルの配線についてのお話。 テレビの屋内配線には、 「送り配線」と「スター配線」 の2種類があります。 最近ではスター配線が主流となっていますが、少し前までは送り配線図 問31 屋内配線に使用できるコードの最小断面積は075mm2 である。 また,ビニルコードは熱の出る器具(白 熱電球も該当)以外に使用するので,ゴムコードが適切である。 第1章 製図用器具/第2章 屋内配線に使用する配線用図記号/第3章 建築図面/第4章 屋内配線図の書き方/第5章 屋内配線の配線設計/第6章 単線配線図を複線配線図に直す/第7章 弱電流回路/第8章 申請図面の書き方
三階建て住宅や廊下に入り口が3箇所以上ある場合などに行う結線です。 〔 結線解説 〕 基本的な結線は、三路スイッチ結線と同じです。 三路スイッチ間に四路スイッチを入れることで、3箇所からのスイッチ操作が可能となります。 四路スイッチを快適さを左右する電気設備を示す図面 新築やリフォームの際には、平面図や配置図、立面図や断面図など、数多くの図面を確認しなくてはなりません。 その中でも、日々の使い勝手や快適さに大きく影響する、照明やスイッチ、コンセント、インターホンや換気扇、給湯リモコンなどの位置や機能などを示す図面が電気配線(設備)図です。 細かい記号や数字など 必要資格や仕組み・作業内容を総まとめ! 屋内配線の工事をするには、基本的に『電気工事士』という国家資格を持っていなければなりません。 なぜなら、屋内配線の作業は専門的な知識が必要かつ、失敗したときのリスクも高いから。 資格を
あらすじ・内容 電気設備の工事には、電気工事士の資格を持たなければ行えない作業が数多くあります。 本書は、第二種電気工事士試験の資格を目指す方や、もう一度基礎から復習したい方を対象に、屋内配線図の仕組みや器具、基本ルールなど基礎知識を図解でわかりやすく解説します。 施工業者のための図面の読み書き、図面の見方と施工の段取り、電気工事電気工事士のための屋内配線図集 著者 広瀬義男 編 出版者 オーム社 出版年月日 1968 請求記号 5444H567d 書誌ID(国立国会図書館オンラインへのリンク) DOI / 公開範囲 国立国会図書館/図書館送信参加館内公開 詳細表示 資料種別屋内配線の設計と実例図集 著者 松島武雄 著 出版者 東京電機大学出版部 出版年月日 1962 請求記号 5444M396o 書誌ID(国立国会図書館オンラインへのリンク) DOI / 公開範囲 国立国会図書館/図書館送信参加館内公開 詳細表示 資料種別 (materialType) Book



メルカリ 屋内配線図の見方 書き方 森本専二 著 オーム社 昭和48年第1版第5刷 住まい 暮らし 子育て 310 中古や未使用のフリマ



筆記対策ー配線図問題で使用されている図面で気が付いたこと 第二種電気工事士 技能試験対策 少人数制実技講習会実施の Ecq
Diyでの電気配線工事の施工方法を紹介。 vvfケーブル、差込コネクタ、スイッチボックス、ジョイントボックス、引っ掛けシーリングなどを使用します。 第二種電気工事士の資格を取得してから行ないました。 テレビアンテナ線、インターホン、LAN配線もやってしまいました。対象商品 屋内配線と構内電気設備配線の配線図マスター―単線図から複線図へ 佐藤 一郎 単行本 ¥3,850 残り7点(入荷予定あり) この商品は、Amazoncojpが販売および発送します。 通常配送無料(一部の商品・注文方法等を除く) 詳細 Jw_cad電気設備設計入門 Jw_cad8対応版 ObraClub 単行本(ソフトカバー) ¥3,5 在庫あり。 この商品は、Amazoncojpが販売および 屋内配線と構内電気設備配線の配線図マスター 単線図から複線図へ 佐藤一郎(電気工学) 本の購入は楽天ブックスで。全品送料無料!購入毎に「楽天ポイント」が貯まってお得!みんなのレビュー・感想も満載。



見方 かき方 屋内配線図 改訂2版 牧野 俊亮 本 通販 Amazon



19年下期の第二種電気工事士試験問題の過去問 建設業界の転職 求人情報なら 建職バンク
ユニット配線図例 住宅の屋内配線にてvvfケーブルの接続を行う場合、従来は接続箱などを設けて現場にて接続作業を行いますが、rsdコネクタ付ケーブルは予め工場にて コネクタを取り付けることにより、現場での接続作業の簡略化と安定した品質を実現1 配線方法について 11 宅内配線方式 従来の住宅で採用された「送り配線方式」では、送り配線用と端末用の直列ユニットを使用しますが各部屋の信号レベルが均一でなく、 また雑音防止対策、メンテナンスが困難なため、LCVでは伝送損失が少ないことや将来の配線システム変更等が容易なこと等からも「分配配線方式」を推奨しています。 (図1) 図1配線方式 1配線器具③-1 店舗付き住宅に三相0V、定格消費電力28kWのルームエアコンを施設する屋内配線工事の方法として、不適切なものは。 イ 電線は人が容易に触れるおそれがないように施設する。 ロ 電路には専用の配線用遮断器を施設する。



災害対策用住宅 静岡県森町の今高建築



I Smart 最終電気図面 一条工務店i Smart ドタバタ 家づくり 一条工務店i Smart ドタバタ 家づくり 電気配線図 電気 設計図面
光配線方式 マンションなどの集合住宅内の各戸まで光ファイバーで接続する方式。 新たに光ファイバーを配線する場合は、管理組合さまかオーナーさまに用意していただく必要があります。 お客さま宅内には「回線終端装置」を設置します。 *1 通信屋内配線工事 担当部署:本社内線部 技術が進む。 需要が変わる。 現場を極める。 私たちは、一歩先を歩いています。 多様化する需要に対して、いつも同じ技術では対応できません。 常に未来を見据えた技術力の育成に勤しみ、現場で最善の力をLANケーブルの屋内配線 無線LAN・WiFiの利用も多くなっていますが、高速に通信したい場合や安定した通信をしたい場合は、有線LANが必須となります。 屋内でLANケーブルを敷設するためのパーツを中心に記載しています。 隠蔽配線(壁内に埋め込み配線) 露出配線(屋内の隅に配線) 21 使用するLANケーブル 22 LANケーブルの固定



第二種電気工事士の過去問 第問 を出題 過去問ドットコム



第二種電気工事士筆記試験 平成28年度下期問41 複線図の書き方
Amazonで君塚信和, 大木健司の図解入門 現場で役立つ 屋内配線図の基本と仕組み。アマゾンならポイント還元本が多数。一度購入いただいた電子書籍は、KindleおよびFire端末、スマートフォンやタブレットなど、様々な端末でもお楽しみいただけます。住まいに便利な電気配線 はじめに 昨今の住環境に目を向けると、お住まいになるかたのライフスタイルの高度化・多様化、さらには居住空間の快適性の追求により、住宅の大型化や家電機器の普及など、著しい変化がみられます。 また、環境問題や電気の基礎知識 家電情報ポケット Panasonic Panasonic 総合お客様サポート 家電情報ポケット 電気の基礎知識 家電情報ポケット キッチンで料理をしているときなどに、分岐ブレーカー(一般的にブレーカーと呼ばれるもの)が落ちたことありませんか



マンションリノベの電気配線図 基礎編 リノベノシゴト



配線計画の手順 自分で電気配線するときの計画の立て方
屋内配線と構内電気設備配線の配線図マスター―単線図から複線図へ 佐藤 一郎著 価格 ¥3,850 (本体¥3,500) 日本理工出版会 (06/02発売) ポイント 35pt ウェブストアに1冊在庫がございます。 (年10月26日 15時22分現在) 通常、ご注文翌日~2日2章 屋内配線図の構成 21 屋内配線工事とは 22 屋内配線図の役割 23 設計図と施工図の違い 24 器具の標準取付け寸法 3章 電灯・コンセント設備配線図 31 電灯・コンセント設備の構成 32 金属管配線図 33 合成樹脂管配線図 34 ケーブル配線図図解 屋内配線図の設計と製作 目次 第1章 製図用器具 1.1 図面と製図 1.2 製図道具の種類とその使い方 1.2.1 筆記具



複線図 第二種電工試験の虎



電気設備の施工図 配線図 の書き方 電気工事のwebbook



単線図について



家 電気配線図 Amrowebdesigners Com



第二種電気工事士筆記試験解答 解説 平成27年度上期 問31 40 電気の神髄



第二種電気工事士 筆記試験 配線図問題2



31問 Wh 図記号目的 令和1年度 19年度 第2種電気工事士の下期筆記の過去問 解説



第二種電気工事士 筆記試験 配線図問題1



17年下期の第二種電気工事士試験問題の過去問 建設業界の転職 求人情報なら 建職バンク



過去問解説 平成26年度上期



第二種電気工事士 筆記試験 配線図問題1



1995 号 屋内電気配線システム Astamuse



家 電気配線図 Aickmandata Com



複線図 第二種電工試験の虎



知ってました 屋内電気配線 何でこんなに パジェロおやじのブログ



年 令和2年度 第二種電気工事士 下期筆記試験 午前 を解説 第二種電気工事士試験 最短合格



16年上期の第二種電気工事士試験問題の過去問 建設業界の転職 求人情報なら 建職バンク



第二種電気工事士 平成18年度 配線図 問題画像



19年上期の第二種電気工事士試験問題の過去問 建設業界の転職 求人情報なら 建職バンク



間取りに合わせた電気配線図 2世帯住宅建築中



図解入門 現場で役立つ 屋内配線図の基本と仕組み サポート 秀和システム



アパートに電気配線を敷設する方法 ビデオ アパートの電気配線図 電気設備の配線図 旧財団



見方 かき方屋内配線図 改訂2版 オーム社 電気 電子 通信 通販モノタロウ



楽天市場 単線図の通販



第二種電気工事士の過去問 第問 を出題 過去問ドットコム



第二種電気工事士の過去問 第問 を出題 過去問ドットコム



Jw Cadで描く配線系統図



メッセージ フラグラント ひどい 照明 配線 図 Artattheedge Org



1999 号 屋内電気配線用図記号ラベル台紙 Astamuse



図解入門 現場で役立つ 屋内配線図の基本と仕組み サポート 秀和システム



家 電気配線 Hōmuaidea



図解 テレビのトラブル対処法 Idc Website



16年下期の第二種電気工事士試験問題の過去問 建設業界の転職 求人情報なら 建職バンク



住宅の電気配線図の記号一覧と見方 チェックポイント 住宅設備 建材の選び方 All About



配線図 その1 単線図と複線図と図記号と 計測制御 Labview徒然草 By 成田義也



Android 用の 電気回路図屋内配線 Apk をダウンロード



電気工事に欠かせない電気図面とは 画像付きで詳しく解説 キャド研



第二種電気工事士 筆記試験 配線図問題2



電気配線図はここを注意 スイッチを使いやすくする方法 建築士が教える 新築の家を建てる人のための家づくりブログ



屋内配線とは コトバンク



Jw Cadで描く配線系統図



電気工事1 隠ぺい配線



第二種電気工事士筆記試験解答 解説 平成29年度下期 問31 40 電気の神髄



Pr この広告は3ヶ月以上更新がないため表示されています ホームページを更新後24時間以内に表示されなくなります 第2種電気工事筆記試験 平成16年 配線図 問題 注意 1 漏電遮断器は 定格電流30 Ma 漏電引外し動作時間が0 5秒以内の



第二種電気工事士 筆記試験 配線図問題1



注文住宅の電気配線図 我が家の電気図公開 Minima Blog ミニマブログ



屋内配線図記号の読み方など



電気の問題を教えてください 課題の図に示す低屋内配線工事 Yahoo 知恵袋



電気配線 パナホームで建築



تحميل 電気工事 屋内配線図



図解屋内配線図の設計と製作の通販 佐藤 一郎 本間 勉 紙の本 Honto本の通販ストア



10年上期の第二種電気工事士試験問題の過去問 建設業界の転職 求人情報なら 建職バンク



図解入門現場で役立つ屋内配線図の基本と仕組み How Nual Visual Text Book 信和 君塚 健司 大木 本 通販 Amazon



1



図記号 傍記表示の由来をチェック 工具のホーザン 電工試験の虎 虎ブログ



第二種電気工事士の過去問 第問 を出題 過去問ドットコム



1



電気配線について



屋内配線と構内電気設備配線の配線図マスタ 佐藤 一郎 著 紀伊國屋書店ウェブストア オンライン書店 本 雑誌の通販 電子書籍ストア



14年上期の第二種電気工事士試験問題の過去問 建設業界の転職 求人情報なら 建職バンク



魚沼テクノスクール 住宅の配線図面の作図 電気施設科



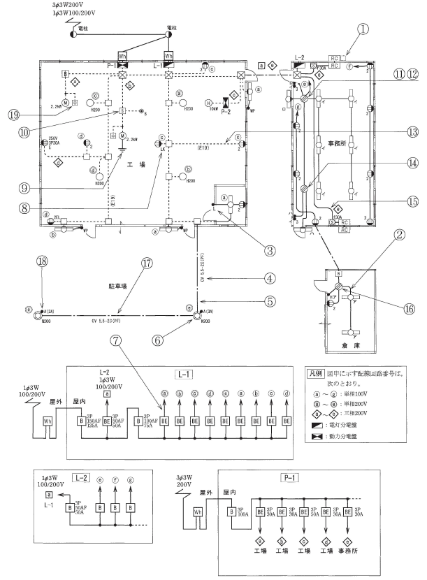
Pr この広告は3ヶ月以上更新がないため表示されています ホームページを更新後24時間以内に表示されなくなります 第2種電気工事士試験 平成19年度 配線図 19年配線図 Jpg 19年分電盤結線図 Jpg 注意 1 屋内配線の工事は 特記のある場合を



屋内配線図 単線図 家庭発電所



図記号 傍記表示を合わせて覚えよう 工具のホーザン 電工試験の虎 虎ブログ



屋内配線と構内電気設備配線の配線図マスター 単線図から複線図への通販 佐藤 一郎 紙の本 Honto本の通販ストア



配線ユニット 製品情報 住友電工産業電線株式会社



図解屋内配線図の設計と製作 佐藤一郎 本間勉 黒澤浩 明倫館書店 古本 中古本 古書籍の通販は 日本の古本屋 日本の古本屋



04 号 屋内電気配線構造 Astamuse



屋内配線図の見方 書き方 感想 レビュー 読書メーター



Pr この広告は3ヶ月以上更新がないため表示されています ホームページを更新後24時間以内に表示されなくなります 第2種電気工事筆記試験 平成16年 配線図 問題 注意 1 漏電遮断器は 定格電流30 Ma 漏電引外し動作時間が0 5秒以内の



電気工事の配線図 どこかの街の電気屋



Q Tbn And9gcrhurgsjldmjvvx0cmn19b1fl35pofrlbmtxgyoelhc8uourb V Usqp Cau



配線計画の手順 自分で電気配線するときの計画の立て方



Www2 Akita Nct Ac Jp Tanaka Kougi 09nen Seizu Kadai2 Pdf



マニアパレル テトぐるみ Asiihoumiushi コンセントの図面記号だけでもご飯三杯いけますな Http T Co Itiuawtvfq



平成23年度下期 第二種電気工事士 筆記 配線図



Dc12v屋内配線 自作 改造 修理の館 新館



電気屋が図と写真で説明 住宅 家 の電気屋内配線図面の見方 電気エンジニアのツボ 電気配線図 電気 エンジニア



Www2 Akita Nct Ac Jp Tanaka Kougi 09nen Seizu Kadai2 Pdf



第2回 配線に関する図記号



1998 1041号 住宅の配線方法 Astamuse



屋内配線図記号の読み方など



メッセージ フラグラント ひどい 照明 配線 図 Artattheedge Org



第二種電気工事士筆記試験 平成23年度上期問49 複線図の書き方



1



第2回 配線に関する図記号



電気屋が図と写真で説明 住宅 家 の電気屋内配線図面の見方 電気エンジニアのツボ



電気工事の配線図 どこかの街の電気屋



必要な電線本数は 単線図から複線図の手順は3ステップで簡単 電気エンジニアのツボ



04 号 屋内電気配線構造 Astamuse



00 号 屋内配線構造 Astamuse



電気図面の種類とは 単線接続図 複線接続図など5種類を紹介 電気エンジニアのツボ



第二種電気工事士 配線図 の過去問をランダムに出題 過去問ドットコム



Diy 電気配線を自分でやるには 屋内配線のやり方

コメント
コメントを投稿